Overview
- 0 acres
Description
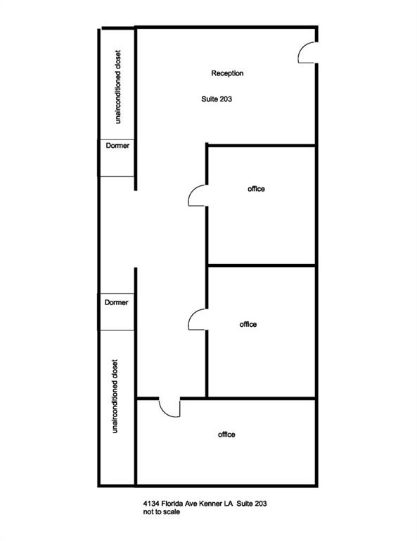
2nd floor office in North Kenner approx 650 sq ft with 3 separate offices and reception area. no elevator, no gas, 1/2 bath shared with one other tenant. Tenant pays elec, owner pays water. Modified Gross Lease. Min 1 year lease would like longer. Space avail 3/1/2025. 6 tenants total in building. Great curb appeal. Landlord has upgraded exterior and interiors. Conveniently located to Airport.
Address
Open on Google Maps- Address: 4134 Florida Avenue 203
- City: Kenner
- State: Louisiana
- Country United States
Details
Updated on June 3, 2025 at 11:17 am- Price: 695
- Property Size: 0 acres
- Property Type: Commercial Lease
- Property Status: Sold
- Location: Kenner
Contact Information
View Listings- Jennifer LaNasa
- (504) 336-4050 (504) 336-4050